Concurso de Arquitetura: 2005. Projeto Vencedor
Conclusão da obra: 2010.




























Em concurso realizado em 2005, a FHE – Fundação Habitacional do Exército – escolheu esta proposta para a realização de sua sede, com aproximadamente 30 mil metros quadrados de área construída. De modo coerente com os objetivos da instituição,o seu edifício-sede manifesta com clareza os princípios de robustez, facilidade de acesso e transparência. A implantação em poucos volumes puros estabelece uma relação de complementaridade com a paisagem adjacente e o Oratório do Soldado – projeto de Milton Ramos adjacente –, ampliando a área de influência do conjunto.
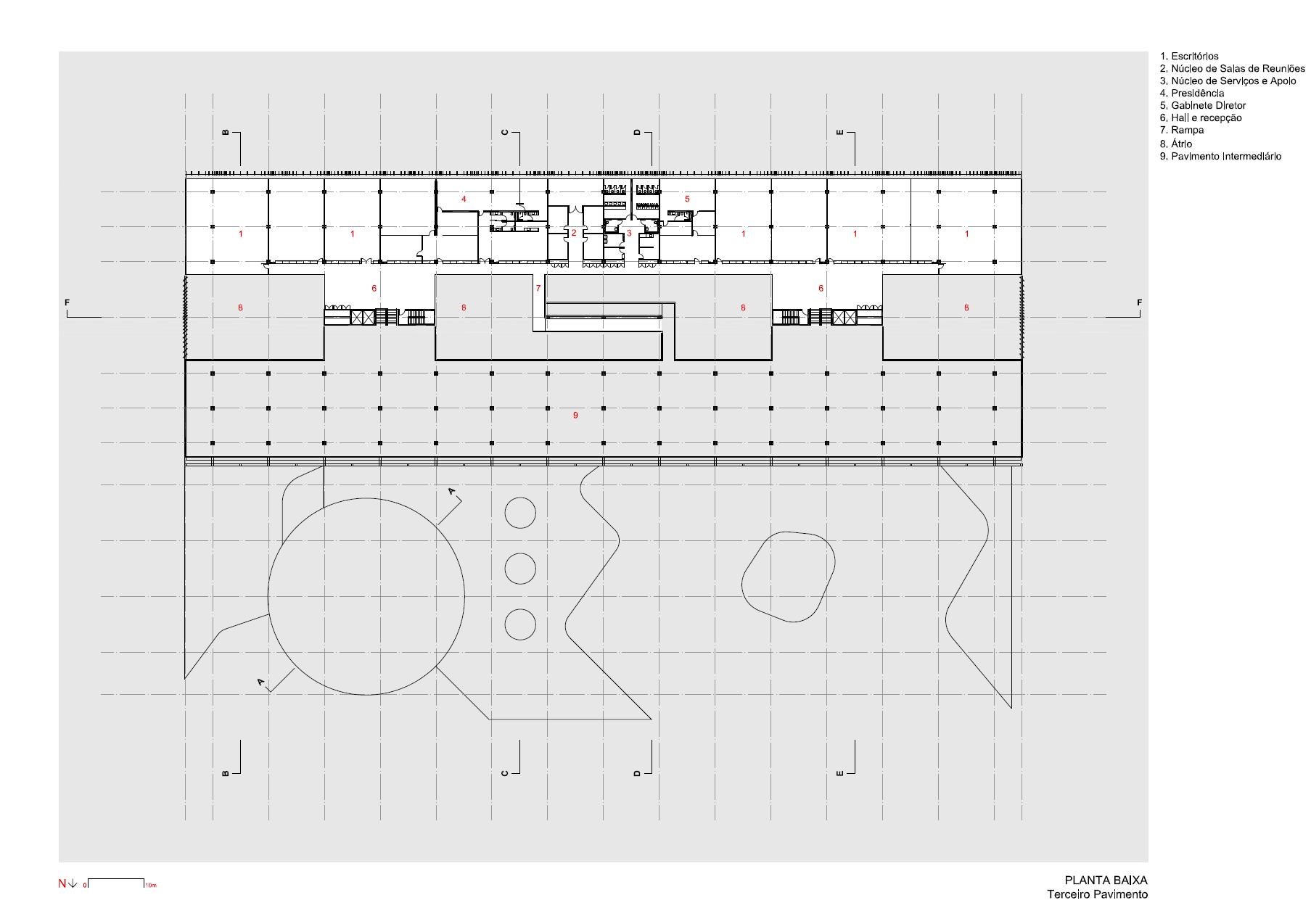
O edifício de escritórios é composto por dois blocos desnivelados entre si e separados por um átrio central. A iluminação difusa e ventilação natural climatizada deste último ambientam com qualidade e economia energética os espaços de trabalho.
O paisagismo complementa o conjunto em relação mimética com o cerrado adjacente e em desenho referente à praça Duque de Caxias – de Burle-Marx – próxima.
A tecnologia construtiva alia a tradição e simplicidade da estrutura em concreto armado à rapidez de montagem e qualidade de acabamento industrializada dos componentes de cobertura, vedação, forro e piso.
Implantação
Trata-se de um lote de 100mX150m no setor militar urbano de Brasília, nas proximidades do eixo monumental e adjacente ao Oratório do Soldado – obra de Milton Ramos. Procurou-se integrar o Oratório, o estacionamento frontal e a sede da FHE em um só conjunto. Por isso, encostou-se o edifício na porção sul do terreno e o auditório circular (refletindo a forma do Oratório) na porção leste. Assim o conjunto abrangeria uma área maior, criando-se uma praça de entrada. A marquise em formas livres foi uma consequencia natural dessa decisão de implantação, permitindo o acesso independente ao auditório e o desembarque coberto pela frente do terreno, sem a necessidade de vias internas. Como não há lotes adjacentes, a delimitação do terreno foi sinalizada com o espelho d’água a oeste.
Sistema Construtivo
Foi utilizado o concreto moldado in loco em lajes nervuradas, com fôrmas pré-fabricadas de fibra de vidro e vigas-faixas niveladas com as nervuras das lajes. A solução foi adotada por ser aquela que permite maior vão estrutural com relativa economia. Assim, os vãos de 10mX6,25m (com 2,5m de balanço longitudinal e 5m de balanço nas extremidades) puderam ser vencidos com 35cm de espessura. O piso elevado em 20cm e o forro modular adotado nos escritórios foram exigência do edital. A partir daí, foi definido o fechamento das empenas leste e oeste em concreto aparente, bem como a panos de vidro nas fachadas norte e sul, complementados por brise-soleil verticais nesta última e por uma placa solta na fachada norte. Ambos os elementos de proteção solar foram feitos de estrutura de aço – perfis dobrados compostos – revestida com alumínio composto (Alucobond cor “Copper-Penny”). Todo o edifício foi modulado em 1,25m – estrutura, divisórias, esquadrias. revestimentos e forro.
Sustentabilidade ambiental
Especialmente no que diz respeito ao conforto ambiental e à economia de energia. Com o átrio interno e as placas de proteção solar externas, acreditamos que será possível realizar em grande parte do ano a ventilação passiva nos pavimentos. Isso será possível também graças ao sistema de condicionamento de ar tipo VRF (Fluxo de refrigerante variável), com compressores que variam a quantidade de gás refrigerado de acordo com a demanda. Foi recomendada a exigência de certificação ambiental para todas as madeiras adotadas. Evidentemente, sustentabilidade passa pelo uso de tecnologias locais, pelo uso de fôrmas reaproveitáveis, pela própria racionalidade e economia da solução construtiva adotada, premissas que também fundamentaram o projeto. Sobre o conforto acústico, houve especial atenção para o tratamento apropriado e específico para cada tipo de ambiente do programa e suas particularidades de uso, o que resultou em soluções e materiais específicos para cada caso: as áreas de escritório e reuniões; o átrio central (espaço de convivência e circulação); e em especial o auditório de 700 lugares, que foi objeto de consultoria e projeto acústico específico.
Acessibilidade
A acessibilidade foi uma das premissas básicas do projeto, em todos os aspectos. No que se refere ao acesso a pessoas com dificuldade de locomoção, o projeto atende a todas as exigências normativas. No sentido amplo da acessibilidade, o projeto está fundamentado na facilidade de circulação entre ambientes e pavimentos. Nesse aspecto, um dos elementos que se destacam na solução e que contribui para a acessibilidade do projeto é a rampa central que conecta os pavimentos desnivelados entre si. Essa distribuição dos pavimentos em meios níveis facilita a circulação no edifício.
Economia na obra (economia prevista por soluções arquitetônicas)
A economia da solução apresentada está relacionada a dois aspectos, que se complementam: (1) racionalidade dos sistemas construtivos e a modulação dos componentes (economia na obra) e (2) estratégias de minimização de recursos associadas às soluções passivas de iluminação e conforto térmico e à especificação de materiais e sistemas que demandam o mínimo de manutenção (economia no uso).
Ficha Técnica
AUTORES: DANILO MACEDO, ELCIO GOMES, FABIANO SOBREIRA, NEWTON GODOY, FILIPE MONTE SERRAT, DANIEL LACERDA
COLABORADORES: JOANA FRANÇA, CARLA RABELO, SIMONE FONSECA, HÉLVIO FRANCO, ANA VALÉRIA DE RESENDE SILVA, IGOR CAMPOS, AILTON CABRAL
FOTOGRAFIA: JOANA FRANÇA E LEONARDO FINOTTI
